SAN LUIS OBISPO MUSEUM OF ART

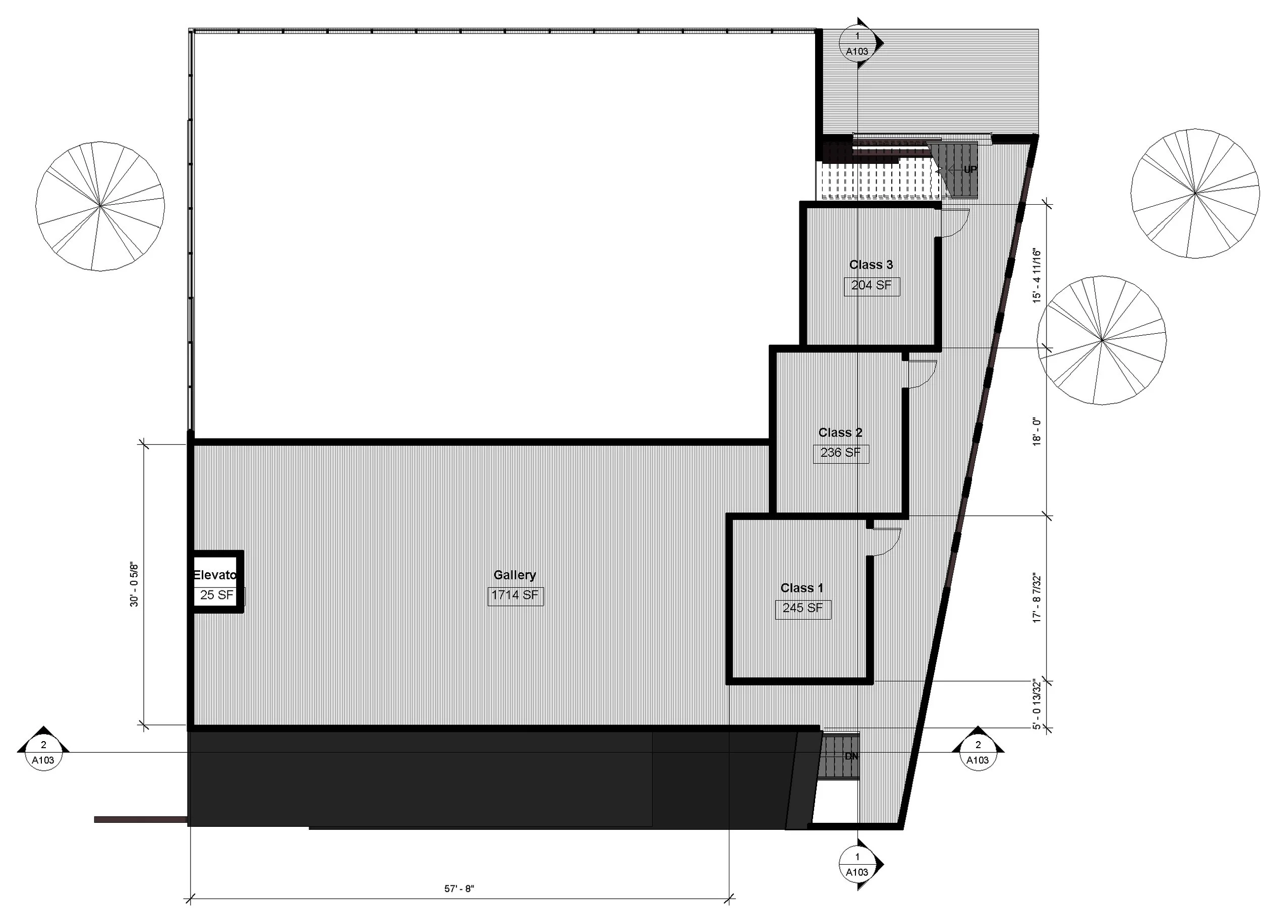
The San Luis Obispo Museum of Art board members requested for a new preposal of the museum in the current location that representative of its surrounding buildings in a modern way. The museum provides gallery spaces for artist, classrooms for art students, and office spacing for employees in one location.

Project: Museum

Studio: ARCH 251

Instructor: David Fernandez

Year: Fall 2015

Location: San Luis Obispo, CA

San Luis Obispo Museum of Art

San Luis Obispo Museum of Art

Front side view

Front side view

View from upper gallery space into lobby

View from upper gallery space into lobby

Conference space

Conference space

Staircase leading to upper gallery spaces

Staircase leading to upper gallery spaces

Study Model 

Study Model 

Study Model

Study Model

Section 1

Section 1

Section 2

Section 2